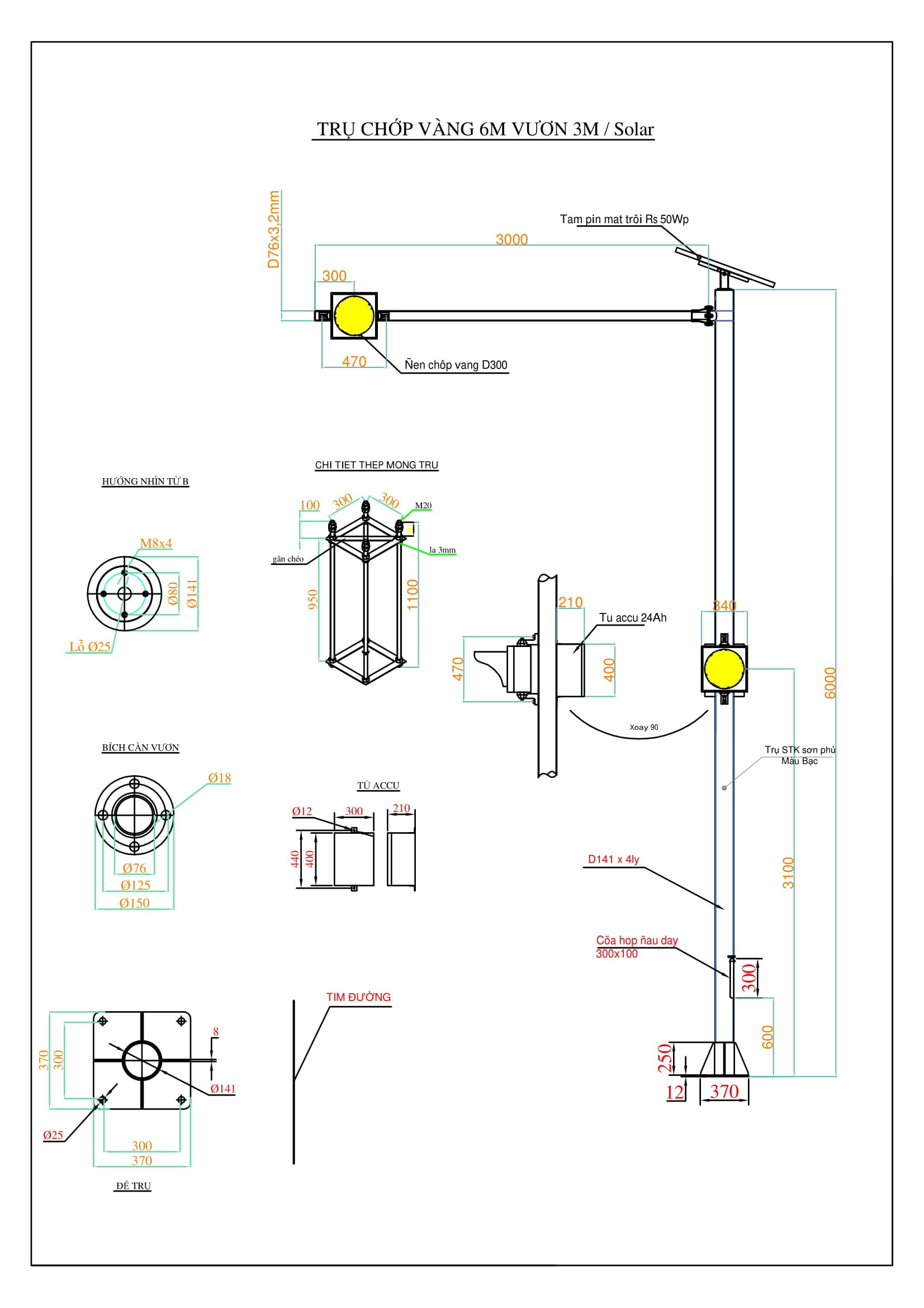
Đèn chớp vàng năng lượng mặt trời D300
Đèn chớp vàng năng lượng mặt trời D300 được lắp ở ngã ba, ngã tư nhằm cảnh báo nguy hiểm cho người tham gia giao thông
Ở trên quốc lộ, khu vực đông dân cư, trước cổng trường học, cổng khu công nghiệp..những vị trí này thường nhiều người tham gia giao thông qua lại, để đảm bảo an toàn cho người tham gia giao thông, vì vậy ban an toàn giao thông cho lắp đèn chớp vàng năng lượng mặt trời để cảnh báo tài xế giảm tốc độ quan sát qua nơi giao nhau.
Ưu điểm của đèn chớp vàng năng lượng mặt trời là gì?
Đèn tín hiệu giao thông năng lượng mặt trời thông thường có màu vàng hoặc đỏ, chớp tắt liên tục và được treo tại các ngã tư
Không sử dụng điện lưới, ít phải duy tu, bảo dưỡng, có thể lắp đặt ở địa hình phức tạp… Tuổi thọ của tấm pin năng lượng mặt trời trên 30 năm. Việc lắp đặt các đèn chớp vàng cảnh báo nguy hiểm này đã góp phần hạn chế đáng kể những vụ tai nạn giao thông.
Một bộ bao gồm:
- 1 Pin năng lượng mặt trời (thường là loại 10 – 50W tùy công suất)
- 1 Đèn cảnh báo kích thước D300
- 1 Bộ điều khiển
- 1 trụ đèn đơn hoặc đôi



Xem thêm